FREE Instant Home Valuation


Property Features

  • Available from May 2026
  • Over 5400sqft
  • Accommodating over 35 Vehicles
  • CCTV
  • Security Lighting
  • Tiled Flooring Throughout
  • Valeting Bay
  • Separate Kitchen with Integrated Appliances
  • Electric Shutters Throughout
  • Three Phase Power
  • Gas Central Heating
  • Glass Mezzanine Office
  • Large Bathroom With Shower Facility
  • 8 Vehicle Lifts Available by Separate Negotiation
  • Rateable Value £14,250

Full Details

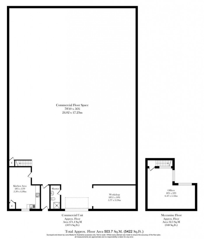
Rare opportunity has become available to rent this ready-made business premises. The business premises is currently habited by an appointment only car dealership, but would suit a plethora of other uses. Monthly Rent - £3333.33 Annually £39999 Situated in a prominent location, just a few minutes’ walk from both Wigan Wall gate and Wigan North Western train stations and a short drive to the M6, M58 & M61 Motorways, this premises is easily accessible for commuters. The property is accessed via a secure entrance hall, fitted with electric shutter, live lock and CCTV with further vehicle access via the large electric shutter. Internally the premises consists of a large showroom, fully tiled with black dropped ceiling with spotlights and plastered walls. Off the main floor, a staircase leads to the glass-walled mezzanine office, which overlooks the showroom and is currently laid out as a private office with large seating area. The premises benefits from a good sized kitchen, with integrated appliances, including oven and dishwasher and a large bathroom fully equipped with shower facility. Finally the premises houses an internal valeting bay with loft storage above. Externally the building has signage on two walls, fitted with security lighting and plenty of on-road and off road parking. *Available Immediately *Over 5400sqft* *Accommodating over 35 Vehicles* *CCTV* *Security Lighting* *Tiled Flooring Throughout* *Valeting Bay* *Separate Kitchen with Integrated Appliances* *Electric Shutters Throughout* *Three Phase Power* *Gas Central Heating* *Glass Mezzanine Office* *Large Bathroom With Shower Facility* *8 Vehicle Lifts Available by Separate Negotiation* *Rateable Value £14,250*

Rare opportunity has become available to rent this ready-made business premises.

The business premises is currently habited by an appointment only car dealership, but would suit a plethora of other uses.

Monthly Rent - £3333.33
Annually £39999

Situated in a prominent location, just a few minutes’ walk from both Wigan Wall gate and Wigan North Western train stations and a short drive to the M6, M58 & M61 Motorways, this premises is easily accessible for commuters.

The property is accessed via a secure entrance hall, fitted with electric shutter, live lock and CCTV with further vehicle access via the large electric shutter.

Internally the premises consists of a large showroom, fully tiled with black dropped ceiling with spotlights and plastered walls. Off the main floor, a staircase leads to the glass-walled mezzanine office, which overlooks the showroom and is currently laid out as a private office with large seating area.

The premises benefits from a good sized kitchen, with integrated appliances, including oven and dishwasher and a large bathroom fully equipped with shower facility.

Finally the premises houses an internal valeting bay with loft storage above.

Externally the building has signage on two walls, fitted with security lighting and plenty of on-road and off road parking.
*Available Immediately
*Over 5400sqft*
*Accommodating over 35 Vehicles*
*CCTV*
*Security Lighting*
*Tiled Flooring Throughout*
*Valeting Bay*
*Separate Kitchen with Integrated Appliances*
*Electric Shutters Throughout*
*Three Phase Power*
*Gas Central Heating*
*Glass Mezzanine Office*
*Large Bathroom With Shower Facility*
*8 Vehicle Lifts Available by Separate Negotiation*
*Rateable Value £14,250*

Arrange a Viewing

* indicates a required field within the form.

Follow The Property Jungle Library on Facebook Follow The Property Jungle Library on Twitter