FREE Instant Home Valuation


Property Features

  • Attention Buy To Let Investors and First Time Buyers
  • Four Bedroom Traditional Terraced Home
  • Walking Distance to Wigan Centre
  • No Onward Chain
  • Open Plan Lounge Diner
  • Rear Courtyard Garden

Full Details

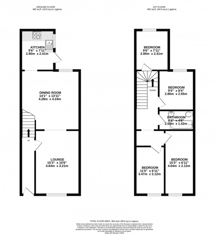
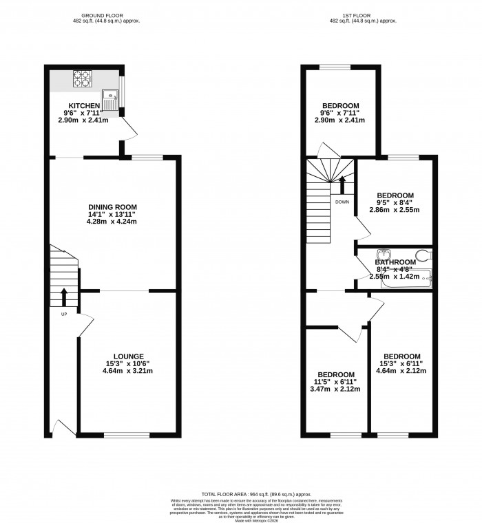
Now available for sale, this traditional four-bedroom terraced home is situated along Darlington Street East, conveniently placed for Wigan town centre. Rail links to Manchester and Liverpool are within easy reach, along with straightforward access to the M6 and M61 motorways. The accommodation is entered via a traditional entrance hallway, with stairs rising to the first floor, and leading through to a spacious open-plan living and dining room. With windows to both the front and rear, this room is naturally bright and well balanced. The kitchen is positioned to the rear of the property and provides access out to the rear yard. To the first floor, arranged around a generous landing, are four well-sized bedrooms and a family bathroom fitted with a bath with shower over, WC and wash basin. Externally, the property is pavement fronted, featuring attractive period stone detailing. To the rear is an enclosed yard, with a lower patio and raised seating area. The property is offered for sale with no onward chain and would suit both family buyers and buy-to-let investors.
Now available for sale, this traditional four-bedroom terraced home is situated along Darlington Street East, conveniently placed for Wigan town centre. Rail links to Manchester and Liverpool are within easy reach, along with straightforward access to the M6 and M61 motorways. The accommodation is entered via a traditional entrance hallway, with stairs rising to the first floor, and leading through to a spacious open-plan living and dining room. With windows to both the front and rear, this room is naturally bright and well balanced. The kitchen is positioned to the rear of the property and provides access out to the rear yard. To the first floor, arranged around a generous landing, are four well-sized bedrooms and a family bathroom fitted with a bath with shower over, WC and wash basin. Externally, the property is pavement fronted, featuring attractive period stone detailing. To the rear is an enclosed yard, with a lower patio and raised seating area. The property is offered for sale with no onward chain and would suit both family buyers and buy-to-let investors.

Arrange a Viewing

* indicates a required field within the form.

Follow The Property Jungle Library on Facebook Follow The Property Jungle Library on Twitter