FREE Instant Home Valuation


Property Features

  • Beautifully Presented Family Home
  • Arranged Over Three Floors
  • Popular New Build Development
  • Driveway Parking
  • Walking Distance of Excellent Nature Walks
  • West Facing Rear Garden

Full Details

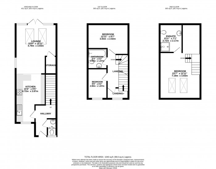
Located on Nixon Phillips Drive in the popular area of Hindley Green, this modern three-bedroom home offers well-planned accommodation arranged over three floors. Built in 2019, the property is well maintained and provides approximately 1,055 square feet of living space. The layout has been designed with practicality in mind. The ground floor accommodation is briefly comprised of, an entrance hallway, with stairs rising to the first floor and downstairs w.c., leading onto the fabulous open plan kitchen and living space. The kitchen is light and modern, with white high gloss units and contrasting wood effect worktops, with a range of integrated appliances including gas hob, double oven, dishwasher and fridge/freezer. The kitchen opens up into the beautifully curated living space, with French doors perfectly framing the outside and velux windows flooding this room with natural light providing a great space to relax, entertain guests or spend time as a family. The first floor is well appointed, with two excellent bedrooms and a family bathroom, all situated around a generous landing. The bedrooms are both doubles, with the family bathroom being well appointed, with bath over shower, w.c. and vanity unit. A final, quite flexible, space gives way to the master suite to the top floor, perfect as a private landing, small study or dressing space. The top floor comprises an impressive master suite, with fitted wardrobes tucked out of the way allowing the rest of the room to remain bright and spacious, with velux windows looking out over the green area to the front. A generous ensuite completes this space with an enclosed shower, w.c. and vanity basin. Externally this home continues to impress. To the rear is the deceptively private west-facing garden, with well stocked borders, lawn and seating area perfect for warm evenings in the summer months. To the front of the home is yet more garden space and a double driveway, offering parking for multiple vehicles. The property is well positioned within a settled residential area, with local amenities and transport links close by. Bickershaw Country Park is just a short walk away, offering access to open green space and walking routes towards the Leeds–Liverpool Canal and Pennington Flash. Early viewings are recommended on this delightful modern family home.
Located on Nixon Phillips Drive in the popular area of Hindley Green, this modern three-bedroom home offers well-planned accommodation arranged over three floors. Built in 2019, the property is well maintained and provides approximately 1,055 square feet of living space.

The layout has been designed with practicality in mind. The ground floor accommodation is briefly comprised of, an entrance hallway, with stairs rising to the first floor and downstairs w.c., leading onto the fabulous open plan kitchen and living space. The kitchen is light and modern, with white high gloss units and contrasting wood effect worktops, with a range of integrated appliances including gas hob, double oven, dishwasher and fridge/freezer. The kitchen opens up into the beautifully curated living space, with French doors perfectly framing the outside and velux windows flooding this room with natural light providing a great space to relax, entertain guests or spend time as a family.

The first floor is well appointed, with two excellent bedrooms and a family bathroom, all situated around a generous landing. The bedrooms are both doubles, with the family bathroom being well appointed, with bath over shower, w.c. and vanity unit. A final, quite flexible, space gives way to the master suite to the top floor, perfect as a private landing, small study or dressing space.

The top floor comprises an impressive master suite, with fitted wardrobes tucked out of the way allowing the rest of the room to remain bright and spacious, with velux windows looking out over the green area to the front. A generous ensuite completes this space with an enclosed shower, w.c. and vanity basin.

Externally this home continues to impress. To the rear is the deceptively private west-facing garden, with well stocked borders, lawn and seating area perfect for warm evenings in the summer months. To the front of the home is yet more garden space and a double driveway, offering parking for multiple vehicles.

The property is well positioned within a settled residential area, with local amenities and transport links close by. Bickershaw Country Park is just a short walk away, offering access to open green space and walking routes towards the Leeds–Liverpool Canal and Pennington Flash.

Early viewings are recommended on this delightful modern family home.

Arrange a Viewing

* indicates a required field within the form.

Follow The Property Jungle Library on Facebook Follow The Property Jungle Library on Twitter