FREE Instant Home Valuation


Property Features

  • Beautiful Two Bedroom True Bungalow
  • Walking Distance to Local Shops and Bus Routes
  • Excellent Commuter Links
  • Recently Renovated
  • Driveway Parking
  • Turn Key Condition

Full Details

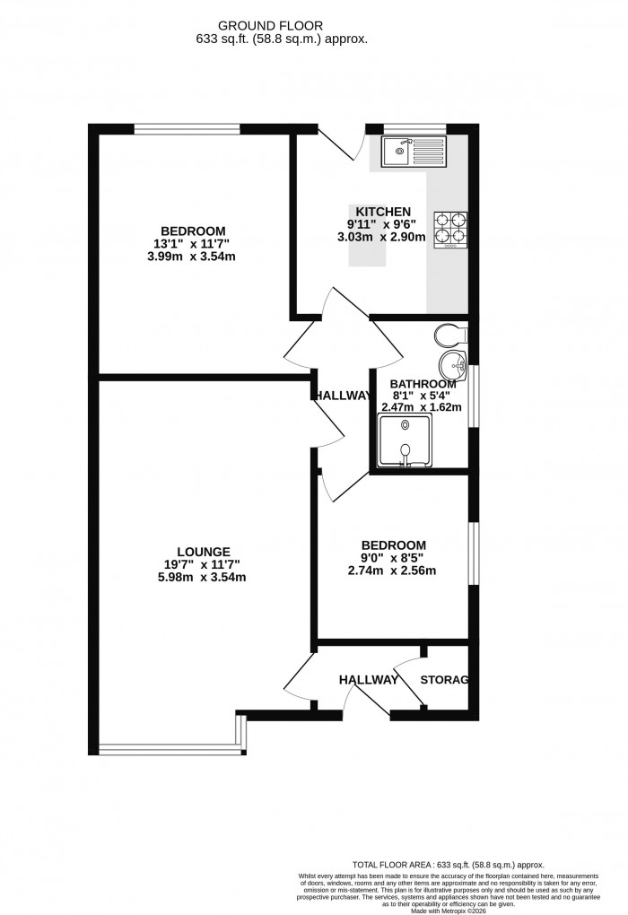
Now available for sale, this beautifully presented two-bedroom true bungalow has been recently refurbished to a high standard and is offered in genuine turn-key condition. It provides the next owners with the simple pleasure of moving in, unpacking and settling straight into their new home — something not often found with properties of this style. The home is situated on the ever-popular The Oval in the heart of Shevington, just a short stroll from local shops, cafés and bus routes, with nearby access to open green space. The M6 and M58 motorways are also within easy reach, making the location both practical and well connected. The accommodation briefly comprises a spacious entrance hallway leading into a well-presented living room arranged around a gas fire with stone surround. Bespoke alcove storage sits neatly to one side. A large picture window and glazed doors draw in plenty of natural light, creating a bright and comfortable space suited to both everyday living and entertaining. To the rear, the kitchen continues the home’s modern finish. The layout has been thoughtfully designed to maximise space, centred around a practical island providing additional preparation area. An oak butcher block worktop contrasts with sleek white gloss units, and integrated appliances include a fridge freezer, electric hob, oven and extractor. A new composite door gives access to the rear garden. The principal bedroom overlooks the garden and is finished in neutral tones with plush carpeting and fitted wardrobes. These are currently open in design, though doors could easily be added by a future owner. A second bedroom, positioned to the side of the property, is presently arranged as a dressing room and home office but could equally serve as a guest bedroom, dining room or additional sitting room. The shower room completes the accommodation, fitted in a clean, contemporary style with smart tiling, a walk-in shower with overhead fitting, and a vanity unit topped with quartz and a freestanding wash basin. Externally, the property is set back from the road with a garden frontage and driveway parking for several vehicles. To the rear is a private, well-established garden with new fencing, a laid lawn, raised decked seating area and a stone-flagged covered seating space. Properties of this type are seldom presented in such well-finished condition. Early viewing is recommended to avoid disappointment
Now available for sale, this beautifully presented two-bedroom true bungalow has been recently refurbished to a high standard and is offered in genuine turn-key condition. It provides the next owners with the simple pleasure of moving in, unpacking and settling straight into their new home — something not often found with properties of this style.

The home is situated on the ever-popular The Oval in the heart of Shevington, just a short stroll from local shops, cafés and bus routes, with nearby access to open green space. The M6 and M58 motorways are also within easy reach, making the location both practical and well connected.

The accommodation briefly comprises a spacious entrance hallway leading into a well-presented living room arranged around a gas fire with stone surround. Bespoke alcove storage sits neatly to one side. A large picture window and glazed doors draw in plenty of natural light, creating a bright and comfortable space suited to both everyday living and entertaining.

To the rear, the kitchen continues the home’s modern finish. The layout has been thoughtfully designed to maximise space, centred around a practical island providing additional preparation area. An oak butcher block worktop contrasts with sleek white gloss units, and integrated appliances include a fridge freezer, electric hob, oven and extractor. A new composite door gives access to the rear garden.

The principal bedroom overlooks the garden and is finished in neutral tones with plush carpeting and fitted wardrobes. These are currently open in design, though doors could easily be added by a future owner. A second bedroom, positioned to the side of the property, is presently arranged as a dressing room and home office but could equally serve as a guest bedroom, dining room or additional sitting room.

The shower room completes the accommodation, fitted in a clean, contemporary style with smart tiling, a walk-in shower with overhead fitting, and a vanity unit topped with quartz and a freestanding wash basin.

Externally, the property is set back from the road with a garden frontage and driveway parking for several vehicles. To the rear is a private, well-established garden with new fencing, a laid lawn, raised decked seating area and a stone-flagged covered seating space.

Properties of this type are seldom presented in such well-finished condition. Early viewing is recommended to avoid disappointment

Arrange a Viewing

* indicates a required field within the form.

Follow The Property Jungle Library on Facebook Follow The Property Jungle Library on Twitter