FREE Instant Home Valuation


Property Features

  • No Onward Chain
  • Bags of Potential
  • Three Excellent Bedrooms
  • Corner Plot
  • Detached Garage
  • Quiet Private Position

Full Details

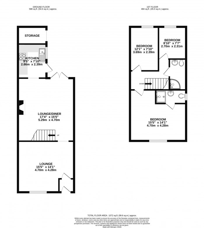
Now available for sale, with no onward chain – this charming three bedroom traditional end terraced home is situated in the heart of Springfield, within walking distance of excellent local schools shops and Robin Retail Park, as well as within easy reach of the M6 and M58 Motorways. The accommodation is briefly comprised of; entrance vestibule, leading into the spacious front living room. The dining room is situated to the rear of the property, with French doors flooding this space with natural light and stairs rising to the first floor. The kitchen is to the rear of the property and could potentially be opened up into the living space. To the first floor are three excellent bedrooms, with the master bedroom benefitting from a handy ensuite, with enclosed shower, basin and w.c. Two further bedrooms are situated to the rear of the property, which are both great sizes. The bathroom is to the side of the property with enclosed shower, w.c. and basin. Externally is where this property really shines, benefitting from a corner plot, with driveway parking, detached double garage, a rear courtyard garden (with access to further storage space beyond the kitchen, and then a further garden to the rear, which is currently partly fenced off, but could be opened up very easily to create a fabulous garden space. Whilst the property is ready for some modernisation, the home is liveable and has plenty of potential for the next owners to create a really lovely home on an enviable plot. Early viewings are recommended on this lovely home.
Now available for sale, with no onward chain – this charming three bedroom traditional end terraced home is situated in the heart of Springfield, within walking distance of excellent local schools shops and Robin Retail Park, as well as within easy reach of the M6 and M58 Motorways.

The accommodation is briefly comprised of; entrance vestibule, leading into the spacious front living room. The dining room is situated to the rear of the property, with French doors flooding this space with natural light and stairs rising to the first floor. The kitchen is to the rear of the property and could potentially be opened up into the living space.

To the first floor are three excellent bedrooms, with the master bedroom benefitting from a handy ensuite, with enclosed shower, basin and w.c. Two further bedrooms are situated to the rear of the property, which are both great sizes. The bathroom is to the side of the property with enclosed shower, w.c. and basin.

Externally is where this property really shines, benefitting from a corner plot, with driveway parking, detached double garage, a rear courtyard garden (with access to further storage space beyond the kitchen, and then a further garden to the rear, which is currently partly fenced off, but could be opened up very easily to create a fabulous garden space.

Whilst the property is ready for some modernisation, the home is liveable and has plenty of potential for the next owners to create a really lovely home on an enviable plot.

Early viewings are recommended on this lovely home.

Arrange a Viewing

* indicates a required field within the form.

Follow The Property Jungle Library on Facebook Follow The Property Jungle Library on Twitter